MM Hungarian (Willowbrook Deisgn) RDChesapeake, VA 23322
Listing courtesy of Deana Renn of AtCoastal Realty
Due to the health concerns created by Coronavirus we are offering personal 1-1 online video walkthough tours where possible.


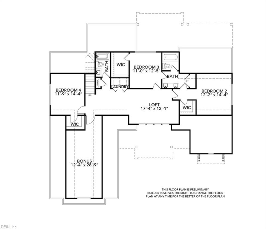
Signature Series Estate – Now Available! This stunning new build offers elevated design and thoughtful details throughout. Set on 3 spacious acres with well and septic, the home boasts luxury vinyl plank flooring in all living areas, GE Profile appliances, a covered rear porch, metal roofing, and a spa-like full tile shower in the primary suite. Enjoy custom wood shelving, abundant natural light, and timeless finishes. The first floor features the primary bedroom suite, plus an office or 5th bedroom for flexible living. Upstairs, discover a spacious loft and bonus room, Jack-and-Jill bedrooms with shared baths, and walk-in closets in every room. Convenience is built in with laundry on both levels. This Signature Series home combines elegance, function, and comfort—perfect for those seeking refined country living just minutes from town. Don’t miss your chance to own this one-of-a-kind property! Call for a deisgn center appt today!
| a month ago | Listing updated with changes from the MLS® | |
| 2 months ago | Listing first seen on site |
© (2026) REIN Inc. Information Deemed Reliable but Not Guaranteed
The listings data displayed on this medium comes in part from the Real Estate Information Network Inc. (REIN) and has been authorized by participating listing Broker Members of REIN for display. REIN's listings are based upon Data submitted by its Broker Members, and REIN therefore makes no representation or warranty regarding the accuracy of the Data. All users of REIN's listings database should confirm the accuracy of the listing information directly with the listing agent.
© (2026) REIN Inc. REIN's listings Data and information is protected under federal copyright laws. Federal law prohibits, among other acts, the unauthorized copying or alteration of, or preparation of derivative works from, all or any part of copyrighted materials, including certain compilations of Data and information. COPYRIGHT VIOLATORS MAY BE SUBJECT TO SEVERE FINES AND PENALTIES UNDER FEDERAL LAW.
Some listings may be duplicated in the search results due to the co-mingling of listings from more than one multiple listing service. Should there be different listing information between the duplicated listings; user is advised to verify the accuracy of the listing information before making any financial decisions.
Some or all of the listings (or listings Data) represented in this application have been enhanced with Data not provided by REIN. The enhancements are as follows: Community information and market data Powered by ATTOM Data Solutions. Copyright ©2019 ATTOM Data Solutions.
REIN updates its listings on a daily basis. Last checked: 2026-02-02 06:18 PM UTC
This application does not include information on all of the properties available for sale at this time.



Did you know? You can invite friends and family to your search. They can join your search, rate and discuss listings with you.